Projeto Arquitetônico em Indaiatuba: Chácara dos Meninos


Quando fui chamada para realizar este projeto o Casal “P” estava dividido: enquanto ele queria vender a chácara sua esposa, com um valor sentimental pelo imóvel queria reforma-la. Mas está provado que são as mulheres que entendem e mandam em casa... então, comecei a desenhar a reforma. Em minha avaliação na chácara constatei que realmente valia a pena ser reformada, e o resultado ficou espetacular!!


A grande transformação visual ficou por conta da modernização da fachada e da criação de uma laje que gerou varandas estratégicas tanto no térreo quanto no andar superior, reconectando a casa ao jardim. Com foco em acessibilidade e fluxo, reformulamos rampas e acessos à piscina, entregando uma casa que mistura sofisticação moderna com a essência de refúgio e descanso.
DETALHES




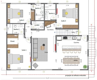
Entre vender ou reformar, venceu o potencial do imóvel. Esta chácara passou por uma intervenção radical "de dentro para fora" para atualizar um layout antigo às necessidades contemporâneas. O térreo foi reconfigurado para abrigar três suítes confortáveis e um home office, enquanto a área social foi expandida e integrada, criando o cenário perfeito para receber convidados.




Do Conceito à Entrega
Entendimento profundo do seu estilo de vida
1
2
Desenvolvimento do Projeto com Técnica e Identidade
3
Acompanhamento da Execução e Curadoria Final
Antes de qualquer traço, a SubliMaison mergulha na sua rotina, necessidades e referências.Aqui nasce o conceito autoral do projeto — aquele que traduz sua personalidade em forma, luz, textura e funcionalidade.É onde transformamos desejos em possibilidades reais.
Com o conceito aprovado, avançamos para a criação do projeto completo: layout, interiores, materiais, luminotécnico, detalhamento, compatibilizações e aprovação legal.
Tudo é pensado para unir estética acolhedora, eficiência de uso e viabilidade de obra — sempre com acompanhamento próximo e transparente.
Da entrega dos executivos ao suporte durante a obra, garantimos que cada detalhe seja executado conforme o projeto. Orientamos equipes, ajustamos o que for necessário e fazemos a curadoria final de acabamentos e mobiliário, garantindo que o resultado seja fiel ao conceito inicial — e melhor do que você imaginava.
CONTATO


Indaiatuba | Salto | Itu | Campinas | Região Metropolitana de Campinas
(15) 99693-0055
